














Hoscheid, Parc Hosingen, Canton Clervaux, 9376, Luxembourg
PROJET AVEC AUTORISATION DE BATIR PORU 4 APPARTEMENTS
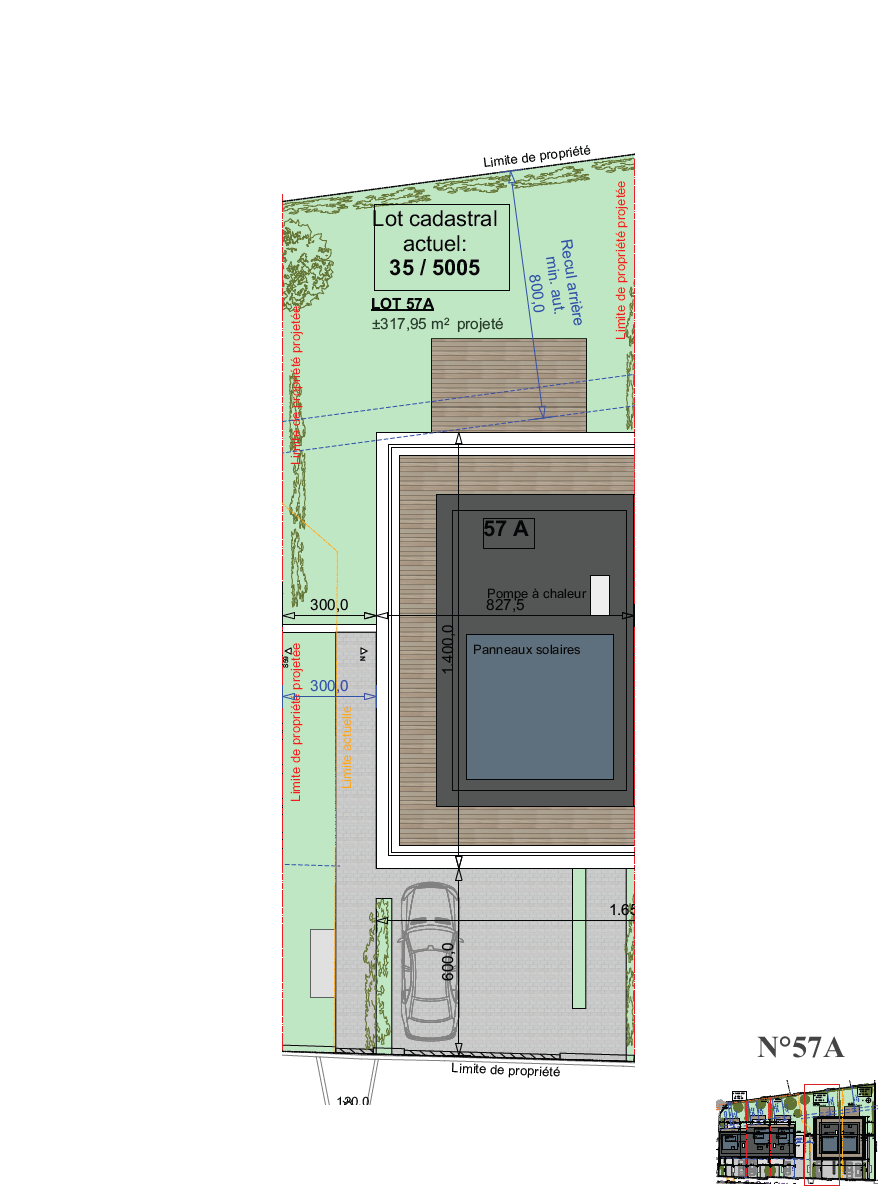
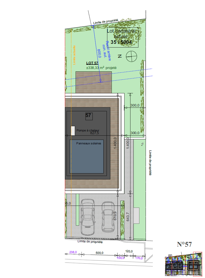
VEFA.LU, votre partenaire de confiance, a le plaisir de vous présenter un projet immobilier exclusif avec autorisation de construire sur un terrain de 6.40 ares, divisé en deux parcelles pouvant être acquises séparément selon vos préférences. Ce projet, autorisé pour la construction de deux maisons bi-familiales, offre la possibilité de construire quatre appartements de haut standing.
Caractéristiques remarquables de ce projet :
Adresse:
57, Haaptstrooss
L-9376 HOSCHEID
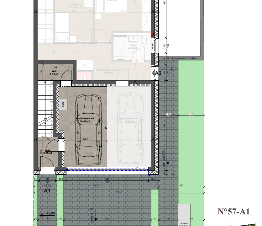
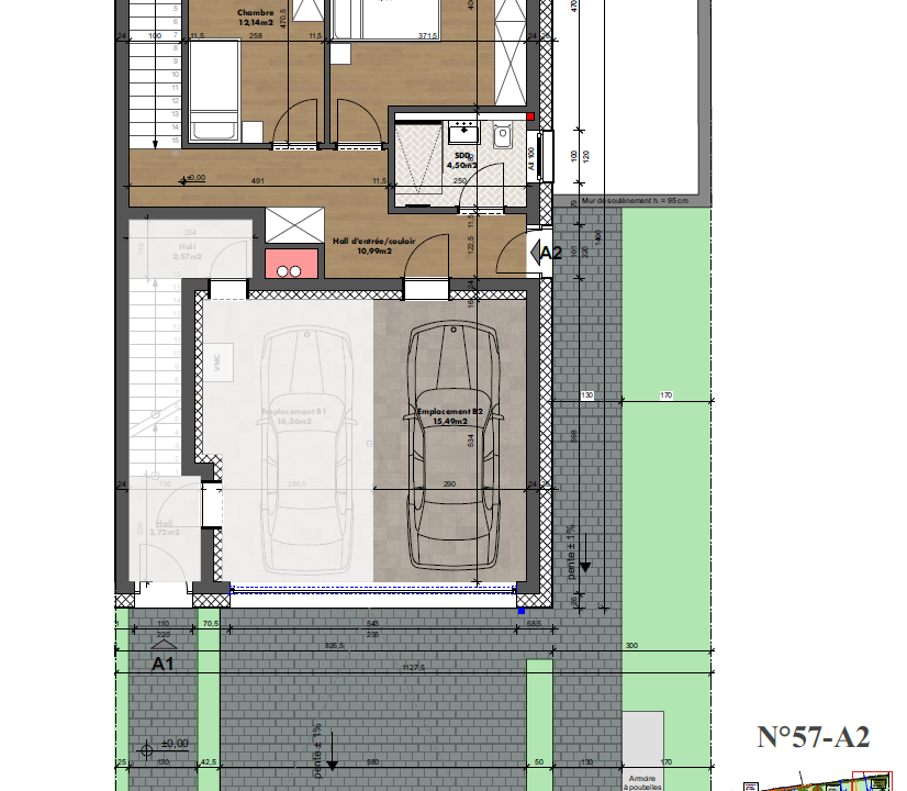
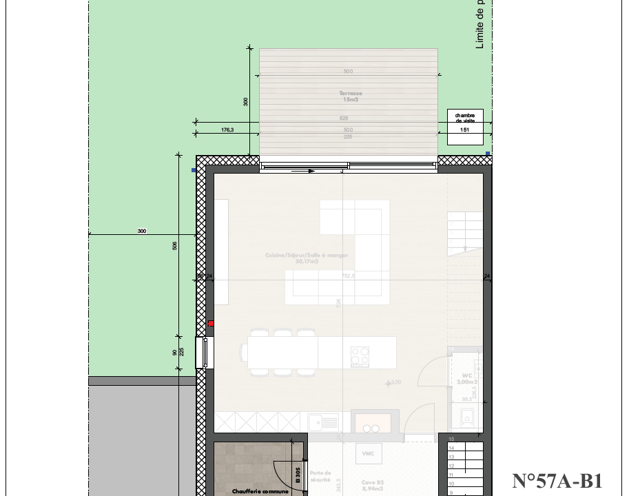
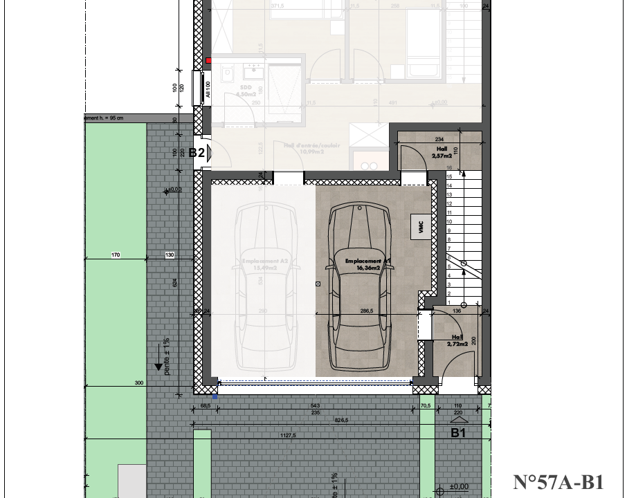
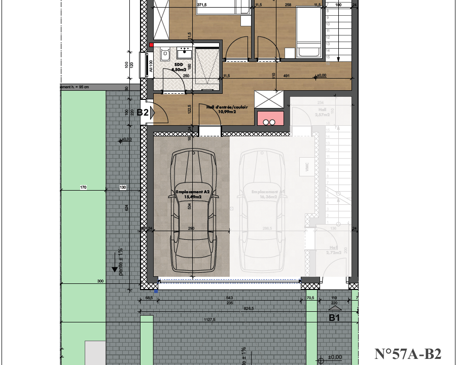
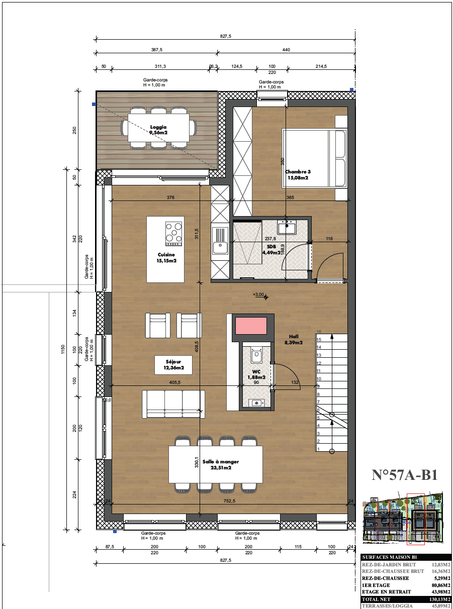
Chaque appartement est équipé d’un vaste séjour avec cuisine ouverte, de 2 salles de douches, de 2 emplacements de parking (un intérieur et un extérieur), d’un WC invité, d’une cave, d’une buanderie et d’un local technique commun.
Caractéristiques de chaque unité :
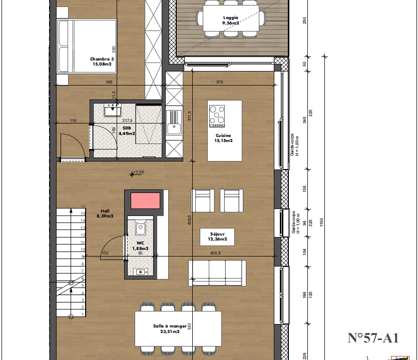
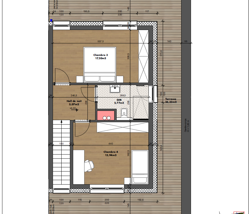
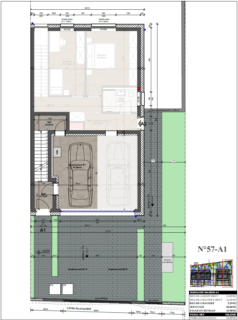
Appartement A1 : 769.000 €
Type : Duplex penthouse
Superficie : 130,13m2
Terrasse : 36,33m²
Loggia : 9,56m²
Chambres : 4
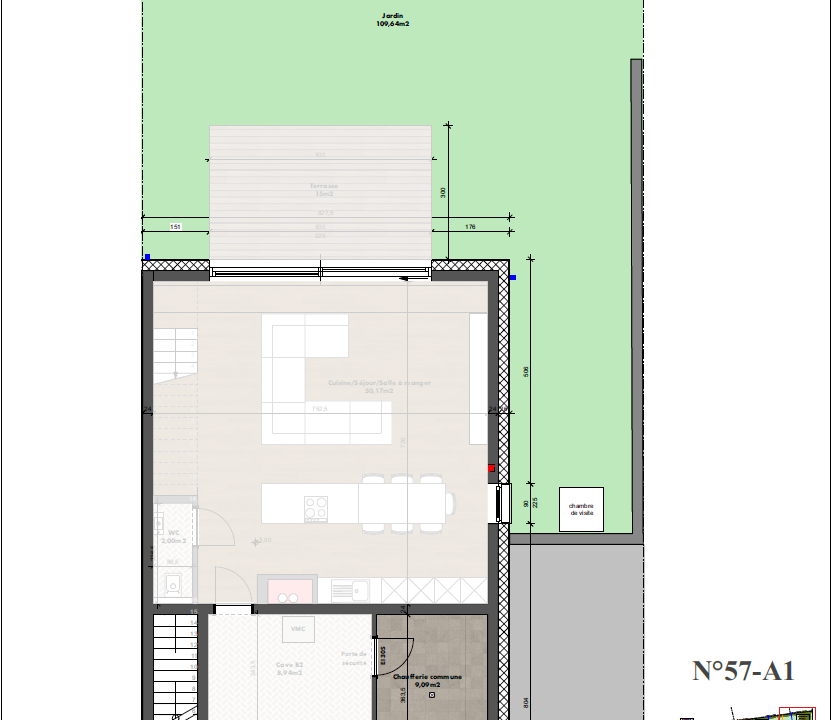
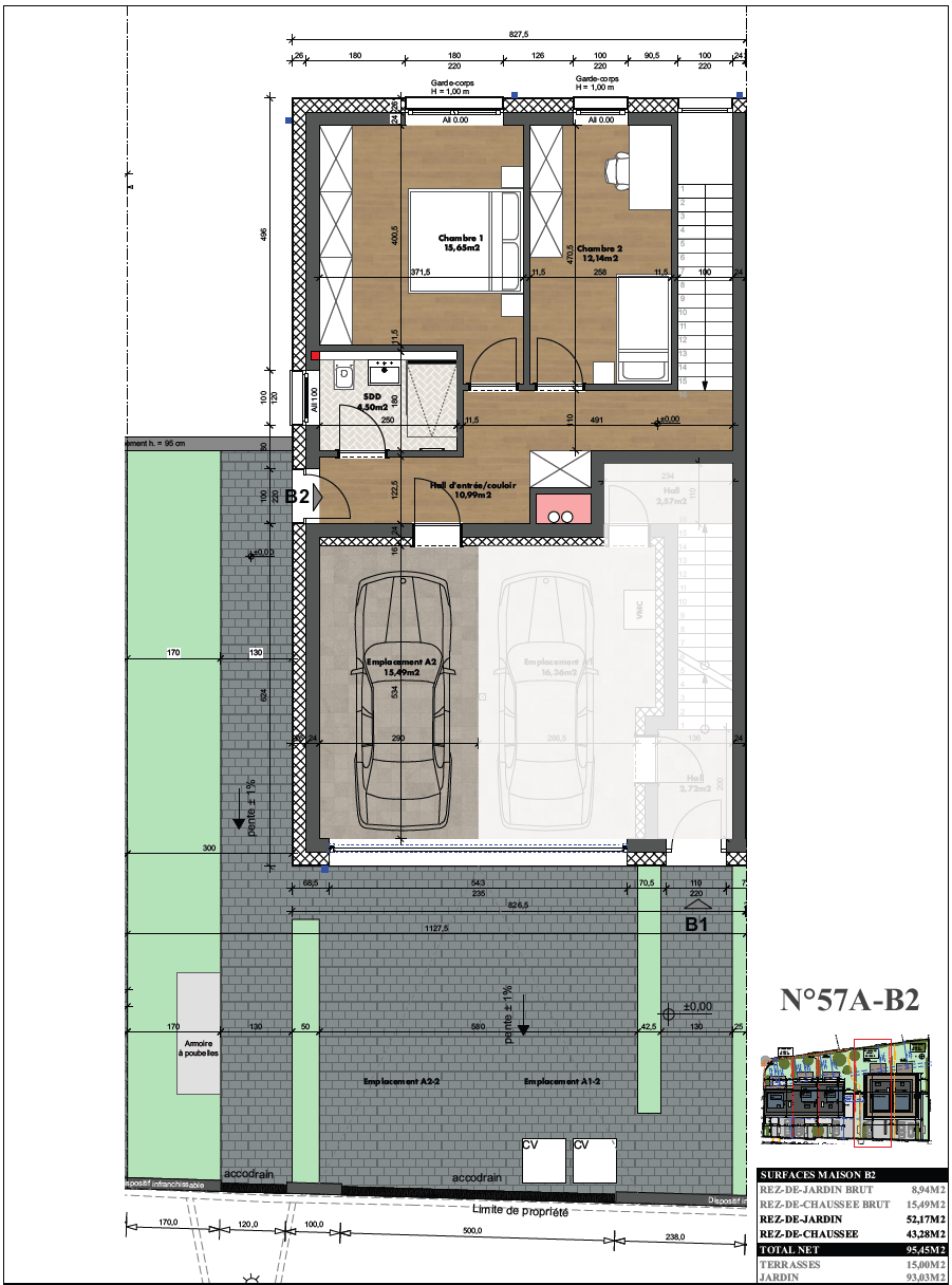
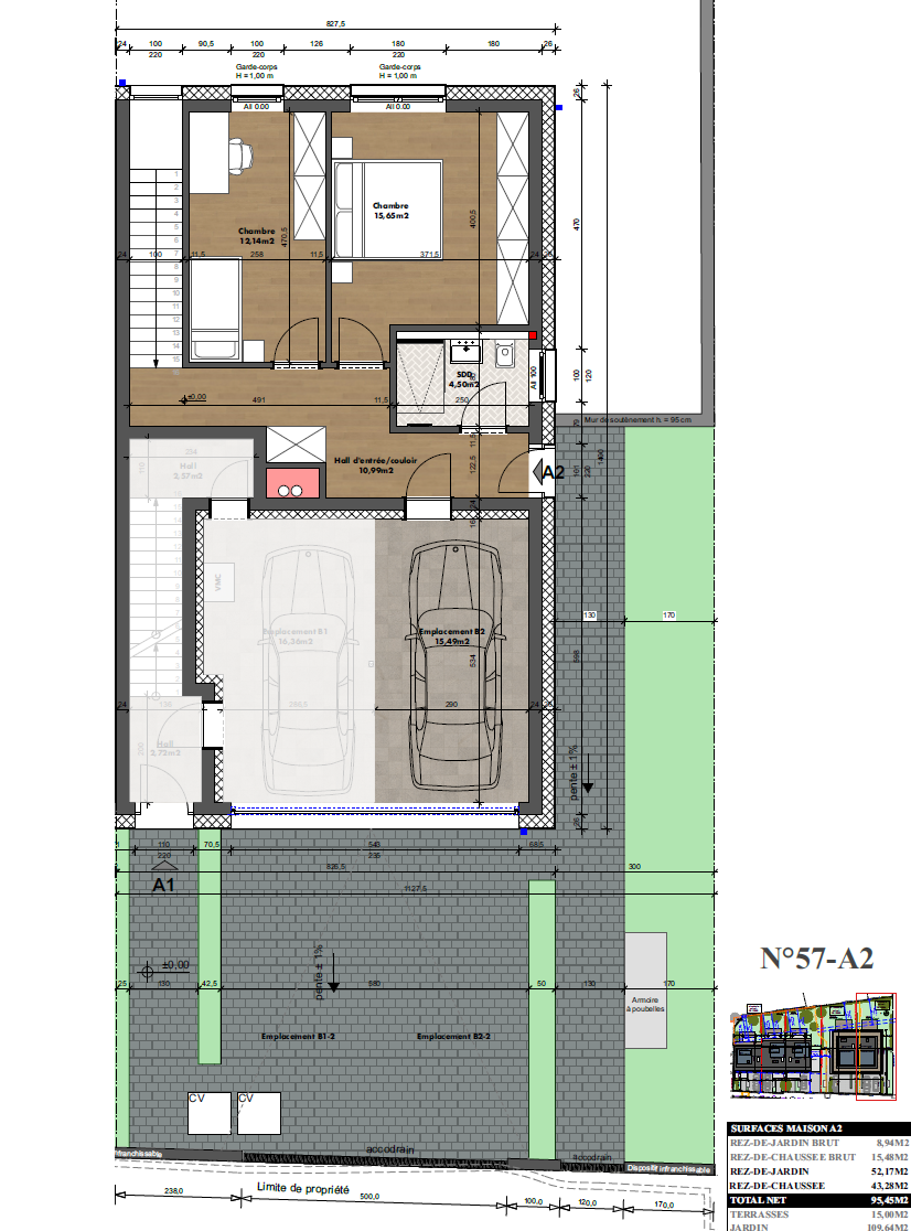
Appartement A2 : 569.000 €
Type : Duplex
Superficie : 95,45m2
Jardin privatif : 109m2
Terrasse : 15m²
Chambres : 3
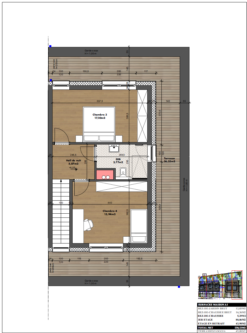
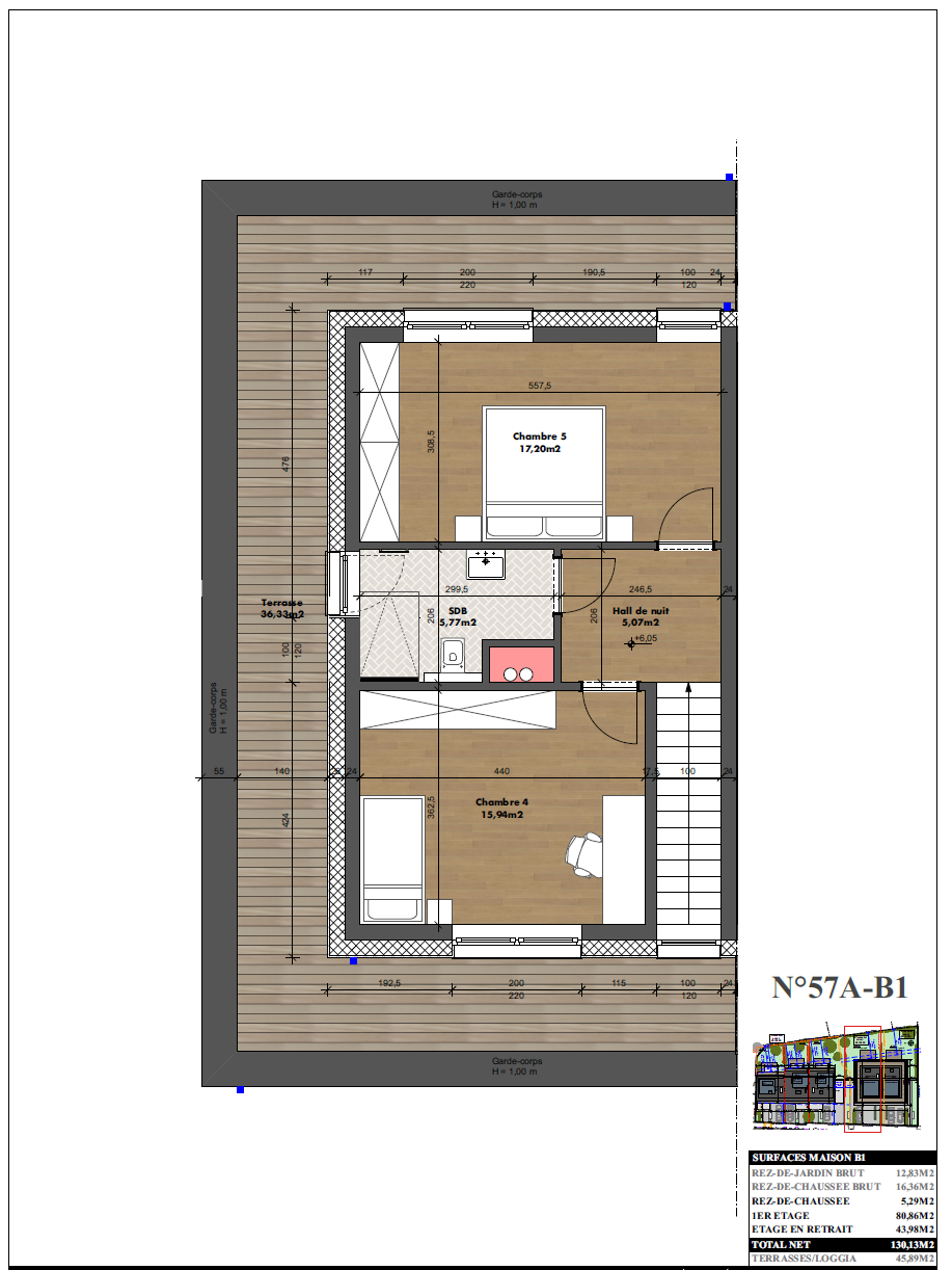
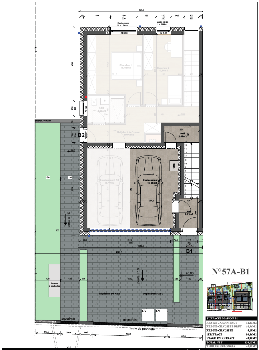
Appartement B1 : 769.000 €
Type : Duplex penthouse
Superficie : 130,13m2
Terrasse : 36,33m²
Loggia : 9,56m²
Chambres : 4
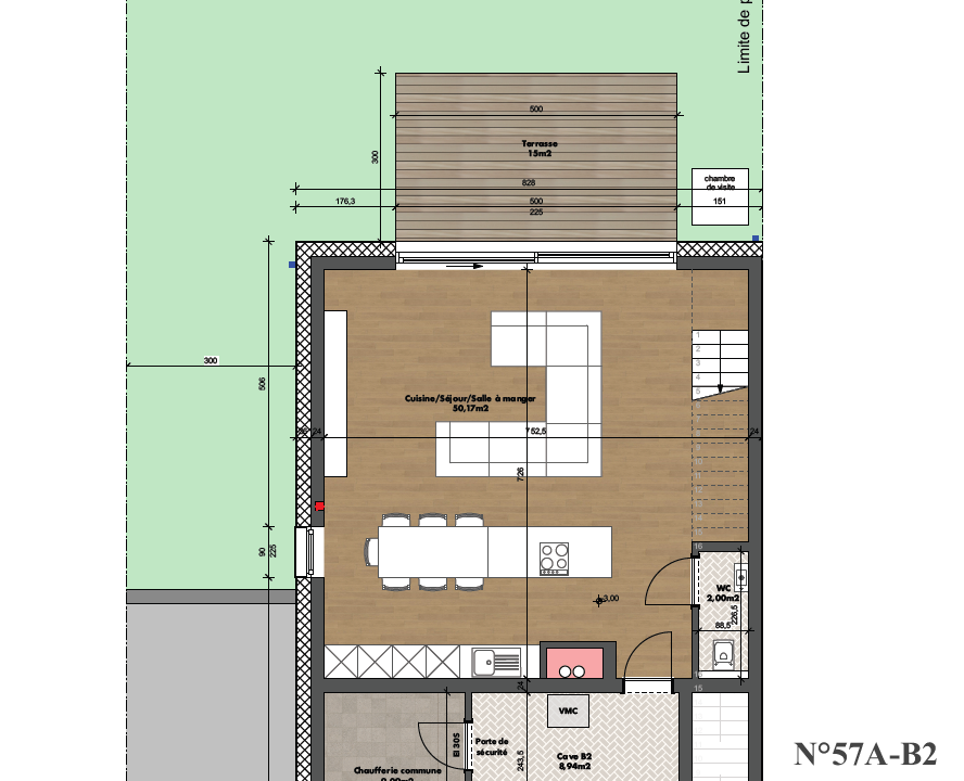
Appartement B2 : 569.000 €
Type : Duplex
Superficie : 95,45m2
Jardin privatif : 93,03m2
Terrasse : 15m²
Chambres : 3
Cette opportunité représente un investissement immobilier de qualité dans un cadre privilégié. Nous sommes à votre disposition pour discuter de vos besoins spécifiques et pour vous accompagner dans toutes les étapes de ce projet.
Nous restons à votre disposition pour toute demande d’information supplémentaire ou pour organiser une visite sur site à votre convenance.
Les frais d’agence sont à charge du vendeur.
Pour tous renseignements, veuillez nous contacter par téléphone au +352 691 211 219 ou par mail : support@vefa.lu
PROJECT WITH BUILDING PERMISSION FOR 4 APARTMENTS
HomePass is pleased to present an exclusive real estate project with building permission on a 6.40-ares plot, divided into two parcels that can be purchased separately according to your preferences. This project, approved for the construction of two semi-detached houses, offers the possibility to build four high-end apartments.
Key features of this project:
Address:
57, Haaptstrooss
L-9376 HOSCHEID
Plot Size: 6.40 ares, divided into two parcels
Project Type: Authorized for two semi-detached houses
House Configuration: Each house includes 2 duplexes, totaling 4 apartments
Sales Options: Possibility to purchase with or without a construction contract
The apartments are designed to offer unparalleled comfort and quality of life.
Each apartment is equipped with a spacious living area with an open kitchen, 2 shower rooms, 2 parking spaces (one indoor and one outdoor), a guest WC, a cellar, a laundry room, and a shared technical room.
Features of each unit:
Apartment A1: €769,000
Type: Penthouse Duplex
Size: 130.13 m²
Terrace: 36.33 m²
Loggia: 9.56 m²
Bedrooms: 4
Apartment A2: €569,000
Type: Duplex
Size: 95.45 m²
Private Garden: 109 m²
Terrace: 15 m²
Bedrooms: 3
Apartment B1: €769,000
Type: Penthouse Duplex
Size: 130.13 m²
Terrace: 36.33 m²
Loggia: 9.56 m²
Bedrooms: 4
Apartment B2: €569,000
Type: Duplex
Size: 95.45 m²
Private Garden: 93.03 m²
Terrace: 15 m²
Bedrooms: 3
This opportunity represents a high-quality real estate investment in a privileged setting. We are available to discuss your specific needs and to assist you through all stages of this project.
Please feel free to contact us for any additional information or to schedule a site visit at your convenience.
Agency fees are to be paid by the seller.
For further information, please contact us by phone at +352 691 211 219 or by email at support@vefa.lu
This is a common note that can be displayed on all properties but controlled from one simple option.
368.000€
Added: 07/10/2024
2.150.000€
Added: 16/08/2024
925.000€
Added: 02/10/2024
GRALINGEN – Appartement 2 chambres avec terrasse et jardin Nouveau Projet de Luxe, Commune de Putscheid !
Owning a home is a keystone of wealth… both financial affluence and emotional security.
Suze Orman